6647 Cranberry Street
Set in the Cranberry Community
Located across from DA Evans Park, and near shopping, a senior centre and other businesses, this development opened in July 2023, and was built with financial support from BC Housing, on land owned by Life Cycle Housing.
The 24 housing units are laid out in four separate buildings: two buildings each containing (8) one and two bedroom apartments, and two buildings each containing (4) two and three bedroom townhouses. Two of the one-bedroom units are fully wheelchair accessible.
Amenities:
Common Room
Laundry Room
Covered Outside Smoking Area
Playground for Small Children (financed by the Powell River Community Forest Foundation).
Rents:
1 Bedroom Apartment $950 per month
2 Bedroom Apartment $985 per month
2 Bedroom Townhouse $1,075 per month
3 Bedroom Townhouse $1,150 per month
Rent includes garbage pickup only.
Tenants are responsible for paying hydro, phone and internet. Heating and cooling are provided by heat pumps and baseboard heaters, and paid through the tenant’s hydro connection. Rents are raised annually, in line with provincial regulations.
This property is operated by Life Cycle under a contract with BC Housing. Tenants must be either seniors (55+) or families. Market rents are set at about 10% below market rate and rent subsidies are available for up to 17 tenants who cannot afford the established rents. Qualifying tenants pay only 30% of their income towards rent, with BC Housing paying the balance to Life Cycle. Subsidies are based on proof of income, which must be updated annually.
Important Note: SAFER & RAP benefits are not available to any tenants at Cranberry Place.
About Cranberry Place
Cranberry Place was made possible thanks to funding from BC Housing, development consulting services from Vesta Management, and industry recognized top quality design, construction and project management by Mobius Architecture & Spani Developments.
The development will provide 24 units for moderate and low income families and seniors as well as some accommodation for people with disabilities. All tenants must be capable of living independently. Life Cycle does not provide support services.
Features
24 units in four separate buildings,
A mix of 1 & 2-bedroom apartments and 2- & 3-bedroom townhouses,
Two fully accessible 1-bedroom units for couples or individuals with accessibility needs,
All units have either a balcony or ground level patio for enjoying the outdoors,
Common laundry and community room for all tenants,
Full site landscaping incorporating a play area and community garden space,
Parking space for each unit,
Close to services, community amenities and transit route.
Unit Designs
Cranberry Place offers two different unit designs
Apartments: 1 and 2 bedroom units on one level (no stairs) situated in two 2-storey buildings facing Cranberry St. Each building has one fully accessible 1-bedroom unit.
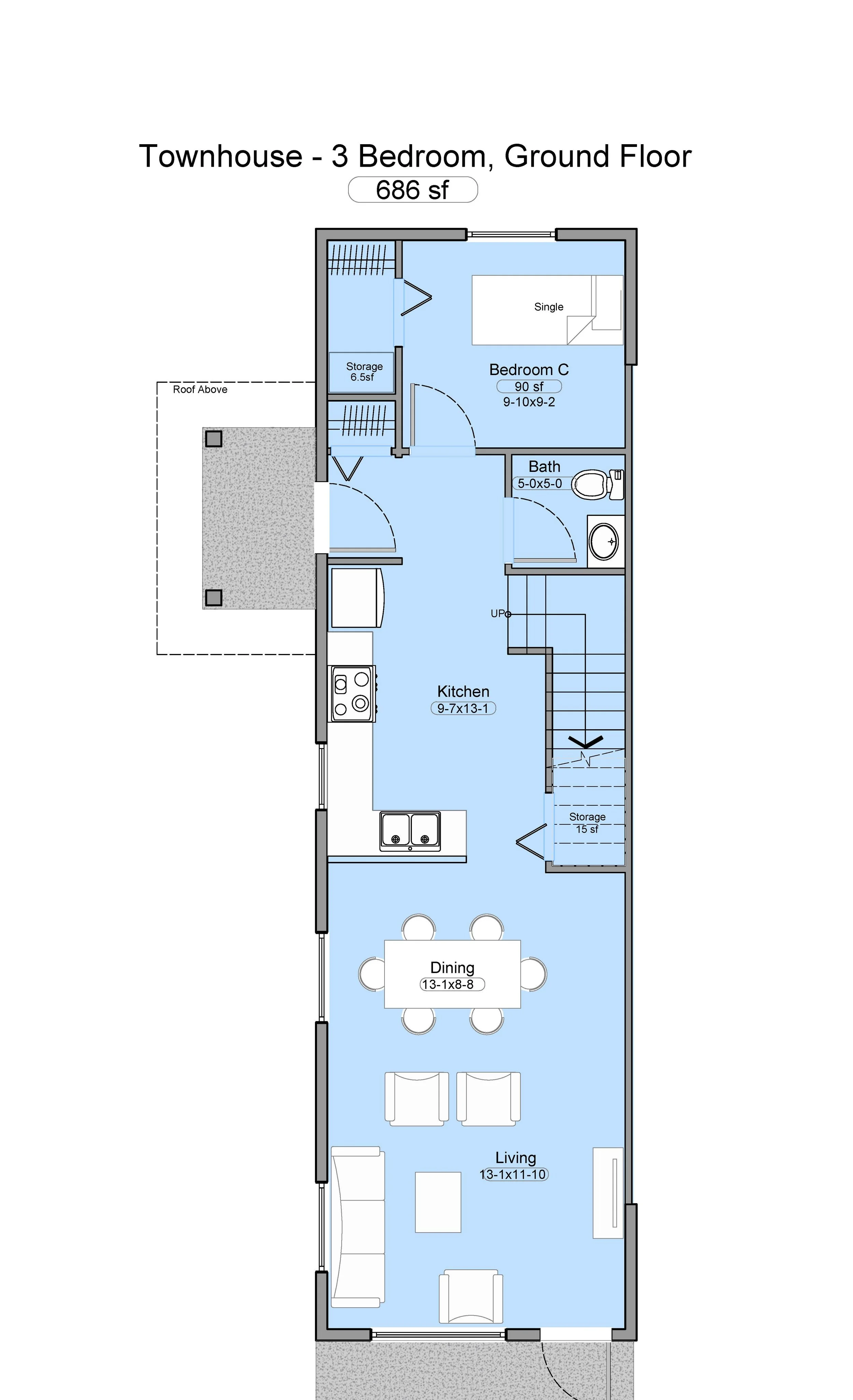
Townhouses: 2 and 3 bedroom units on two levels – ground level entrance, living space and powder room; bedrooms and full bathroom upstairs.
All units are relatively small but efficiently laid out. Storage space for ‘stuff’ is very limited. Please refer to the sample unit layouts found below at the bottom of this page.
Unit Types and Rental Rates
Cranberry Place provides a combination of market units (7) for moderate income tenants and subsidized units (17) for lower income tenants. The income criteria for each category are defined below.
The size of unit assigned to each tenant is based on household size and composition and is determined by the Canadian National Occupancy Standards, found here.
Market Unit Rents are slightly below rents paid for similar units in the general community. Current monthly market rents are
1 bedroom apartment $ 875
2 bedroom apartment $ 910
2 bedroom townhouse $1,000
3 bedroom townhouse $1,075
Subsidized Unit Rents - Rents for subsidized units are typically not more than 30% of the gross annual household income.
Cranberry Place has a few subsidized units with lower rent available for families or individuals with very limited income. Seniors and Persons with Disabilities are given priority for these units.
Important Things To Note
In addition to the rent, all tenants will pay for hydro (heat, lights, appliances, etc.) phone, internet, and use of laundry equipment.
SAFER benefits are not available to Cranberry Place tenants.
What’s Available?
There are waitlists for most units; however, some are not long. If some people currently on the waitlists change their minds or do not meet all eligibility requirements, new applicants have a chance of getting in.
One Bedroom Units -
Subsidized 1-bedroom units are in short supply. Five of the 10 constructed are committed to our former Cranberry tenants who had to relocate during the construction period and are returning. Two 1-bedroom fully accessible units are available. Three market units have not been assigned.
Two Bedroom Units - 7 subsidized and 3 market units to be assigned.
Three Bedroom Units - 3 subsidized and 1 market units to be assigned.
Tenant Eligibility Requirements
Selected tenants for all units must meet eligibility requirements set by BC Housing regarding residency, household incomes and asset values.
General Eligibility Requirements - apply to all units
Tenants must have lived in BC for at least one year. Preference is given to qathet Regional District residents.
All tenants must be capable of living independently. Life Cycle does not provide support services.
The value of tenants’ assets must be within BCH and Life Cycle Housing limits.
Income Limits
Market Units - To be eligible for a market unit, the applicant’s gross annual household income must be at least $38,000 and not more than;
$ 75,530 for a 1-bedroom unit
$117,080 for 2+ bedrooms unit.
Subsidized Units - To be eligible for a subsidized unit, an applicant’s gross annual household income* must be below the Housing Income Limits set by BC Housing. For 2023, these limits are
$37,000 for a 1-bedroom unit
$38,500 for a 2-bedroom unit
$42,000 for a 3-bedroom unit
*The annual household income includes the gross income from all persons within the household, except students, and excludes income from GST and Child Tax Credits.
Other factors also affect eligibility.
How To Apply for Subsidized Housing
If you meet the income limits and other eligibility requirements listed above, you may qualify for a rent subsidy. To be considered for a subsidized unit at Cranberry Place you must
1. Apply to the BC Housing “Housing Registry.” You can either;
Apply online or
Download and print the PDF Application Form or
Pick up a copy of the application form from the Life Cycle office.
and
2. Submit a copy of your completed Housing Registry application and all required supporting documents to the Life Cycle Office. You can send your application by;
Email: info@lifecyclehousing.com
Regular mail: Life Cycle Housing Society, 32-4949 Ontario Ave. Powell River, BC V8A 5T7
Submitting your documents to the Housing Registry and the Life Cycle office at the same time will speed up our review of your application.
When completing the Housing Registry application, carefully follow the Application Instructions and Checklist provided on the Housing Registry website. Make sure your application is filled out completely and correctly and all required supporting documents are provided. Incomplete applications will result in processing delays.
Need help with your application?
If you need help completing the Housing Registry application form call
Housing Registry at 1-800-257-7756 (toll free) or at 1-604-433-2218.
Powell River Poverty Law Office (Trisha) - 207-4801 Joyce Ave - 604-485-0950
Powell River Community Resource Centre - 4752 Joyce Ave - 604-485-0992
Due to time constraints, our office DOES NOT assist with completing these forms.
How To Apply for a Market Unit
If you meet the market unit income limits and other eligibility requirements listed above, you may qualify for a market unit.
Click here for a market unit application form.
Submit your completed market unit application directly to the Life Cycle office by
Email: info@lifecyclehousing.com
Regular mail: Life Cycle Housing Society, 32-4949 Ontario Ave. Powell River, BC V8A 5T7
**Caution re Personal Delivery of Completed Applications
Our office is open to the public for limited hours. Because completed applications for subsidized or market units include sensitive personal information, we do not recommend delivering documents in person. If you do need to deliver your application personally, please call the office in advance to arrange a suitable drop-off time. Office number: 604.485.6006
